find out what's our business units and their capabilities.
Synergy Engineering is an energy services company based in Southeast Asia.
Location: South Sumatera, Indonesia
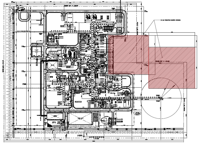
Jambi Merang block was designed for producing natural gas and extract liquid from Pulau Gading (PG) and Sungai Kenawang (SK) fields. The production from SK and PG fields is processed in Sungai Kenawang Central Gas Plant (SKCGP), which is capable for 155 MMscfd feed gas.

Synergy's Scope of Work
Client is planning a plant expansion to accommodate an additional 30-60 MMscfd.
Synergy was commissioned to perform a conceptual study to identify the facility requirements for the plant expansion.
The work scope included the expansion of the liquid handling facilities, with the design of the LPG Recovery System playing a significant role in the study.
Key Project Achievements